Erstbezug nach Kernsanierung! Schicke 3 Zimmer Wohnung mit Terrasse
| externe Objnr | 1023 | PLZ | 76287 |
| Ort | Rheinstetten / Mörsch | Objekttyp | Erdgeschosswohnung |
| Objektart | Wohnung | Wohnfläche | 70,19 m² |
| Nutzfläche | 6,52 m² | Grdst größe | 692 m² |
| Anzahl Zimmer/Räume | 3 | Anzahl Schlafzimmer | 1 |
| Anzahl Badezimmer | 1 | Anzahl Terrassen | 1 |
| Kellerfläche | 6,52 m² | Anzahl Stellplätze | 1 |
| Ges.zahl Etagen | 3 | Etage | Erdgeschoß |
| Kaufpreis | 260.000 € | Courtage | 2% zzgl. MwSt. |
| Stellplatzkaufpreis | 10.000 € | Stellplatzanzahl | 1 |
| Bauweise | Massivhaus | Etagenzahl | 3 |
| Heizungsart | Zentralheizung | Befeuerung | Gas, Solar |
| Boden | Dielen, Fliesen-Steinzeug | Stellplatzart | Stellplatz im Freien |
| Wasch/Trockenraum | Ja | Küche | offenen Küche ohne EBK |
| Terrasse | Ja | Bad | Bad mit Dusche und WC, Tageslichtbad |
Objektbeschreibung
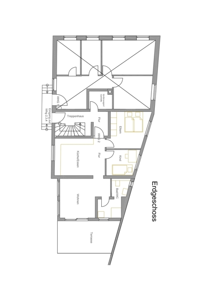
Diese schicke 3 Zimmer-Wohnung befindet sich in einem liebevoll und hochwertig sanierten 4 Familienhaus.
Die Wohnung selbst teilt sich auf in eine große offene Wohnküche, ein Wohnzimmer mit Zugang auf die Terrasse, ein Schlafzimmer, ein kleines Arbeitszimmer sowie ein Tageslichtbad mit Dusche, Waschbecken und WC.
Die Böden sind mit hochwertigen Eichendielen ausgelegt und die Wände mit Glattputz versehen. Dies verleiht der Wohnung einen modernen, hochwertigen und gemütlichen Charme.
Ein Kellerraum sowie ein PKW-Stellplatz ergänzen das Angebot.
Energieausweis
Art: Bedarfsausweis
Gültig bis: 03.02.2031
Endenergiebedarf: 152.30 kWh/(m²*a)
Baujahr lt. Energieausweis: 1918
Wesentlicher Energieträger: Gas
Ausstattung
Wohnzimmer mit Zugang zur Terrasse
offene Wohnküche
Schlafzimmer
Arbeitszimmer
Tageslichtbad mit Dusche, Waschbecken und WC
Terrasse
Keller
Stellplatz im Hof
Lage
Dieses komplett sanierte Gebäude befindet sich im Ortskern von Rheinstetten-Mörsch.
Die nächste S-Bahn-Haltestelle ist nur ca. 800m entfernt.
Sehr gute Anbindung an die B36.
Einkaufsmöglichkeiten für den täglichen Bedarf sind in unmittelbarer Nähe vorhanden.
Sonstige
Die Wohnung wird bis spätestens 01.05.2021 fertig gestellt.
Ihr Ansprechpartner
Holzner Immobilien
Raimund Holzner
Saarstraße 102
69151 Neckargemünd
Telefon: 06223-73821
E-Mail: info@holzner-immobilien.de





















