Neubau! Eigentumswohnung im Zentrum von Wolfartsweier
| externe Objnr | 1104 | PLZ | 76228 |
| Ort | Karlsruhe / Wolfartsweier | Objekttyp | Etagenwohnung |
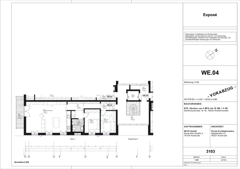
| Objektart | Wohnung | Wohnfläche | 86,98 m² |
| Grdst größe | 1.280 m² | Anzahl Zimmer/Räume | 3 |
| Anzahl Schlafzimmer | 2 | Anzahl Badezimmer | 1 |
| Anzahl Balkone | 1 | Anzahl Stellplätze | 1 |
| Ges.zahl Etagen | 5 | Etage | 2. OG |
| Kaufpreis | 434.000 € | Courtage | keine Courtage |
| Stellplatzkaufpreis | 25.000 € | Stellplatzanzahl | 1 |
| Bauweise | Massivhaus | Etagenzahl | 5 |
| Heizungsart | Fußbodenheizung, Zentralheizung | Befeuerung | Luft/wasser Wärmepumpe |
| Barrierefrei | Ja | Boden | Fliesen-Steinzeug, Parkett |
| Fahrstuhl | Personenaufzug | Stellplatzart | Tiefgaragenstellplatz |
| Abstellraum | Ja | Balkon | Ja |
| Küche | offenen Küche ohne EBK | Bad | Bad mit Dusche und WC, Tageslichtbad |
Objektbeschreibung
Hier entsteht eine außergewöhnliche Wohnanlage im Zentrum von Wolfartsweier.
Insgesamt entstehen hier 20 Wohnungen und 2 Gewerbeeinheiten in 4 Gebäuden die mit Glastreppenhäuser miteinander verbunden sind.
Die Architektur überzeugt durch innovative Ideen und neuartigen Details. Aussergewöhnlich sind die Grundrisse mit vielen vertikalen Verbindungen (Lufträumen, Durchdringungen etc.) Die oft oberflächlich gestaltete monotone Neubauarchitektur findet hier ein erfrischendes Beispiel für das Spiel mit Licht und Schatten. Blickbeziehungen, offenen Strukturen und Rückzugsebenen.
Auch die Fassadengestaltung ist in Karlsruhe und im Umkreis einzigartig. Es erhalten 3 Giebelseiten des Gebäudes immergrüne Fassaden, bestehend aus einzelnen Modulen, die dank automatischer Bewässerung dafür sorgen, dass die Pflanzen ganzjährig gedeihen. Diese Bepflanzung verbessert das Mikroklima der Anlage und der direkten Umgebung. Des Weiteren verfügen einzelne Wohnungen über kleine Gartenanteile. Auch in der Anlage selbst wird auf möglichst viel Grünfläche und Bepflanzung wert gelegt.
Für die kleinsten Bewohner der Anlage ist ein Spielplatz im Freien sowie ein Indoorspielplatz vorgesehen.
In der Wohnanlage soll eine kleine Bäckerei oder ein kleines Café integriert werden.
Jeder Wohneinheit ist ein Tiefgaragenstellplatz zugeordnet.
Weitere Highlights des Neubaus sind die Echtholzböden in Eiche, die wohnungsinternen Echtholz-Treppen; die ökologischen Ziegelsteine mit denen das Gebäude hauptsächlich errichtet wird und die zahlreichen Sichtbetonelemente welche die Wärme und die Natürlichkeit des Holzes unterstreichen. Auch in Punkto Gebäudetechnik ist die Wohnanlage zukunftsfähig: Wärmepumpen der neuesten Generation versorgen die Wohneinheiten mit Energie.
Ausstattung
- moderne und einfallsreiche Grundrisse
- teilweise begrünte Fassade
- 3-fach verglaste Fenster
- Parkettboden (Eiche Langdiele, lackiert)
- Bäder mit bodenebener Dusche, teilweise Badewanne
- Heizung: Luft-Wasser-Wärmepumpe
- Fußbodenheizung
- Video-Klingelanlage
- Aufzug
- TG-Stellplatz
Eine ausführliche und individuelle Baubeschreibung stellen wir Ihnen gerne bei Interesse zur Verfügung.
Lage
Diese Wohnanlage entsteht im Zentrum von Wolfartweier.
Der Ort liegt zwischen den Stadtteilen Durlach, Rüppurr und Ettlingen und bietet direkt vor Ort einen Bäcker und einen Hofladen. Weitere Möglichkeiten befinden sich in den umliegenden Ortschaften.
Es gibt einen Kindergarten und viele Freizeitangebote.
Die nächste S-Bahn-Haltestelle ist in unmittelbarer Nähe.
Über die Südtangente, welche beim Zündhütle beginnt, ist Wolfartsweier direkt an die Bundesautobahn 5 angeschlossen. Die Anschlussstelle Karlsruhe-Mitte kann nach wenigen Minuten von Wolfartsweier aus erreicht werden.
Sonstige
Fertigstellung bis spätestens Dezember 2024
Erstellung von 20 Wohneinheiten und 2 Gewerbeeinheiten:
Whg 1 90,37qm 451.850,-€ EG & 1.OG
Whg 2 117,37qm 580.450,-€ EG & 1.OG (verkauft)
Whg 3 132,81qm 603.550,-€ EG & 1.OG (verkauft)
Whg 4 86,98qm 434.000,-€ 2.OG ( reserviert )
Whg 5 96,34qm 481.450,-€ 2.OG (verkauft)
Whg 6 71,84qm 358.950,-€ DG
Whg 7 99,80qm 548.625,-€ DG & 2.DG
Whg 8-1 106,44qm 754.752,-€ EG
Whg 8-2 65,93qm 754.752,-€ 1.OG (reserviert)
Whg 9 101,35qm 558.415,-€ 2.OG (reserviert)
Whg 10 90,93qm 481.900,-€ DG & 2.DG (reserviert )
Whg 11 111,40qm 560.404,-€ EG & 1.OG (verkauft)
Whg 12 117,30qm 560.404,-€ EG & 1.OG (verkauft)
Whg 13 68,12qm 340.100,-€ 2.OG (verkauft)
Whg 14 75,00qm 391.664,-€ 2.OG (verkauft)
Whg 15 56,62qm 293.956,-€ DG
Whg 16 75,88qm 394.100,-€ DG & 2.DG. (verkauft)
Whg 17 122,52qm 567.072,-€ EG & 1.OG (verkauft)
Whg 18 106,87qm 500.960,-€ 2.OG (verkauft)
Whg 19 96,70qm 453.700,-€ DG & 2.DG (verkauft)
Gewerbe 1 38qm 209.000,-€
Gewerbe 2 38qm 209.000,-€ (verkauft)
Ihr Ansprechpartner
Holzner Immobilien
Raimund Holzner
Saarstraße 102
69151 Neckargemünd
Telefon: 06223-73821
E-Mail: info@holzner-immobilien.de













